De honor sin fama
De grandeza sin brillo
De dignidad sin premio
del ensayo “Personajes Alemanes” de Walter Benjamin.
“Ser un indio, siempre dispuesto, y sobre el caballo a la carrera,
hendir el aire, vibrar siempre de nuevo sobre el terreno que
vibra, hasta que se abandonan las espuelas, porque no hay
espuelas, hasta que se arrojan las riendas, porque no hay
riendas, y no se ve más que el campo frente a sí, igual a una
extensión pelada, ya sin el pescuezo y sin la cabeza del
caballo”.
Deseo de convertirse en un indio. Franz Kafka. (del ensayo Un
retrato de Infancia de Walter Benjamín).
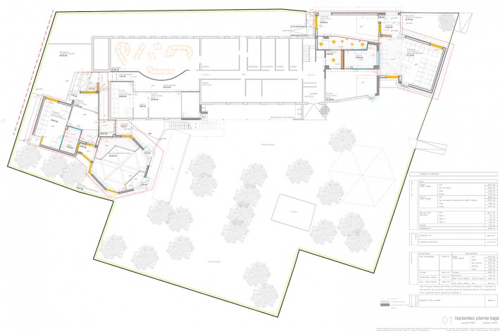
1. Crecimiento y Ampliación del Edificio
El actual Centro se encuentra aislado dentro de una parcela irregular con forma semejante a un trapecio. El solar limita en su cara norte con la Avenida de los Príncipes con una longitud de aproximadamente 65 m, al oeste con la plaza Ramón y Cajal con una longitud de aproximadamente 44 m., y al este con la calle Díaz de Terán con una longitud de aproximadamente 26 m. El límite sur presenta entrantes y salientes como queda definido en la documentación gráfica.
El edificio preexistente se encuentra alineado a la Avenida de los Príncipes, separado al límite de la misma tres metros, dejando un jardín al interior de la parcela colonizado por árboles y distintos juegos, a modo de jardín de infancia.
Se reconocen además otras intervenciones de ampliación en el edificio original, que han mantenido esta situación de implantación en paralelo al límite. El crecimiento del edificio en el tiempo, nos parece que tiene más que ver con un ejercicio de superposición de elementos distintos, que de coherencia formal y homogénea, a pesar de ser el resultado de una operación que tuvo una débil voluntad de hacer crecer un único volumen edificatorio.
La propuesta de ampliación se une al edificio previo, creciendo en sus dos extremos rompiendo el esquema de prolongación y agitando el eje paralelo a la calle. De esta manera se crean dos edificaciones “anexas” que en los puntos de conexión con este, rebajan su altura para enfatizar la idea de agregación, presentándose como elementos más jóvenes.
Surgen así distintos volúmenes que además de unirse al antiguo edificio, van uniéndose entre ellos. Estos volúmenes ocupan parcialmente los espacios que quedan entre las fachadas existentes y los linderos del solar, generando unos patios de pequeño tamaño en los espacios no construidos. Un porche acompaña el tránsito de salida en cada uno de estos patios.
De entre todas estas piezas, destaca por su mayor dimensión y singularidad, el espacio que albergará la sala de juegos y usos múltiples, que con forma hexagonal cierra el edificio en el extremo oeste y se abre completamente mediante una fachada radial al amplio jardín arbolado (jardín de infancia) oponiéndose al hexágono abierto existente que hace las veces de cubierta para juegos en días de lluvia. Esta sala hexagonal se ha pensado como espacio mágico donde la maravilla sea posible.
El color, algo tan usado en los espacios infantiles y presa de tantos clichés tanto a nivel cromático como en el uso de los materiales, se introduce sutilmente en el edificio, a través de las fachadas cerámicas (esmaltadas y sin esmaltar) en los dos volúmenes que rematan los extremos de la edificación.
2. El jardín de Infancia.
Este espacio exterior arbolado es el origen y el fin de la ampliación del edificio. El jardín de infancia, un espacio protegido pero en contacto con el afuera, es el vacío natural sobre el que giran tanto las nuevas aulas como las que han sido remodeladas. Al recibir el encargo, cuando visitamos el edificio por vez primera, los espacios anteriores presentaban ventanas a la altura de los adultos. Los niños no podían ver el exterior. La idea ha sido introducir el jardín en esas aulas, a través de unos microespacios a escala de los pequeños usuarios, hasta hacerlas desaparecer, para no ver “más que el campo frente a sí igual a una extensión pelada, ya sin el pescuezo y sin la cabeza del caballo”.
Dos escalas coexisten simultáneamente en los espacios del nuevo edificio, quedando todo esto escenificado en los huecos que oradan los cerramientos cuya línea fronteriza se encuentra a 1 metro del suelo.



