
El proyecto acomete la renovación del Centro de turismo de la Plaza Mayor de Madrid en la planta baja de la Casa de la Panadería.
Nuestro objetivo fue la recuperación de la naturaleza del espacio histórico heredado, la antigua Tahona Real, apenas alterado desde el trazado de Gómez de Mora y la intervención de Tomas Román tras del incendio de 1672.
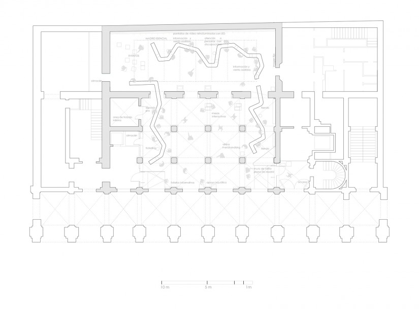
La manera de utilizar dicho espacio que nos encontramos al iniciar el proyecto alteraba la configuración tanto del ámbito de bóvedas como del posterior del patio. El mobiliario y la información ocupaban el área central dificultando su apreciación. En el patio, añadido tiempo atrás, la construcción de elementos de soporte de material gráfico aportaba una lectura confusa de su carácter y proporciones.
Por otro lado era necesario conectar mejor visualmente ambos espacios pues el del patio aparecía como algo secundario y residual respecto del primero.
Liberamos el área central para el movimiento del público visitante favoreciendo de este modo la puesta en valor y comprensión del espacio original de pilastras y bóvedas. Trasladamos la información y atención al público al perímetro mediante un mueble que enlaza y aporta continuidad a ambos espacios al tiempo que multiplica, con su trazado sinuoso, la superficie de atención. Este mueble, de piedra acrílica retro iluminada, establece un contraste diferenciador con el orden pautado de los elementos arquitectónicos del espacio original resaltando su carácter por contraste.
La información audiovisual se traslada al fondo del patio. La recuperación de los huecos originales del mismo, reducidos artificialmente en la solución anterior favorece la atracción sobre este espacio informativo. El propio patio recupera la sencillez de su configuración original, con un estudio cuidadoso de la luz, filtrada a través de una celosía.
Ficha técnica:
Centro de Turismo de la Plaza Mayor de Madrid
Casa de la Panadería. Plaza Mayor 27 Madrid.
Autor: José Manuel Sanz Sanz arquitecto
Arquitectos colaboradores: Irene Brea Martínez, Leticia Llansó García, Jaime Sanz de Haro, Luisa Santamaría Gallardo.
Arquitecto Técnico: Juan Antonio Santuy
Fotografías: Jesús Granada
Proyecto Diciembre 2013. Obra: Mayo-Octubre 2015.
Superficie intervención: 291 m2. Coste ejecución material : 299.000 euros.
Promotor/ Institución: Madrid-Destino, Ayuntamiento de Madrid.
Constructora: Edhinor



